※当ページへの無断リンクはお断りいたします
八尾南駅前ビル
八尾空港の近く、地下鉄谷町線「八尾南駅」徒歩2分の駅前エリアに位置し、近畿自動車道「八尾出口」より10分と自動車・鉄道でのアクセスが便利な八尾南駅前ビルは、24時間出入可能な1フロア約217坪の広さのオフィス空間を確保できるほか、約38~147坪での分割も可能です。
基本情報
| 所在地 | 大阪府八尾市若林町1-87 |
|---|---|
| 敷地面積 | 7,272.46m2(2,199.91坪) |
| 延床面積 | 3,432.06m2(1,0.38.19坪)(事務所部分) |
| 賃室総面積 | 2,791.58m2(844.45坪)(事務所部分) |
| 基準階賃室総面積 | 718m2(217坪) |
| 構造 | RC造 |
| 規模 | 地上5階 |
| 駐車場 | 外部 |
| セキュリティ | キーポストシステムによる入退室管理 等 |
| 天井高 | 基準階:2,600mm 1階:3,200mm |
| OAフロア | 無し |
| コンセント容量 | 15VA/m2 |
| 床荷重 | 300 ㎏/m2 |
| 施工年月 | 1991年5月 |
| アクセス | 大阪市営地下鉄(大阪メトロ)谷町線「八尾南駅」徒歩2分 |
| 関連リンク | 鹿島建設HP(外部リンク) |
空室情報
| 区画 | 用途 | 面積(坪数) | 賃料・共益費 | 敷金 | 入居可能日 | 平面図 |
|---|---|---|---|---|---|---|
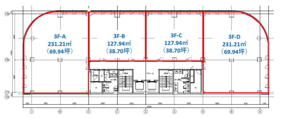
| 3階C | 事務所 | 359.15㎡ (108.64坪) |
応相談・賃料に含む | 12ヶ月分 | 即日 | 平面図 |
| 3階B | 事務所 | 127.94㎡ (38.70坪) |
応相談・賃料に含む | 12ヶ月分 | 応相談 | 平面図 |
| 3階A | 事務所 | 231.21㎡ (69.94坪) |
応相談・賃料に含む | 12ヶ月分 | 応相談 | 平面図 |
| 2階C | 事務所 | 127.94㎡ (38.70坪) |
応相談・賃料に含む | 12ヶ月分 | 応相談 | 平面図 |
| 2階B | 事務所 | 127.94㎡ (38.70坪) |
応相談・賃料に含む | 12ヶ月分 | 応相談 | 平面図 |
| 2階D | 事務所 | 231.21㎡ (69.94坪) |
応相談・賃料に含む | 12ヶ月分 | 応相談 | 平面図 |

