※当ページへの無断リンクはお断りいたします
岡山フコク生命駅前ビル
駅から地下道を抜け2分、出口を上がると目の前がオフィスで、
周辺ビルを牽引するブランドビルです。
基本情報
| 所在地 | 岡山市北区駅元町1-6 |
|---|---|
| 敷地面積 | 1,548.48㎡(468.42坪) |
| 延床面積 | 9,270.89㎡(2,804.44坪) |
| 賃室総面積 | 6,897.18㎡(2,086.51坪) |
| 基準階賃室総面積 | 652.16㎡(197.29坪) |
| 構造 | CFT構造 |
| 規模 | 地下1階/地上11階 |
| 駐車場 | 84台(内 ハイルーフ対応24台) |
| セキュリティ | 機械警備システム 24時間入退館可能 |
| 天井高 | 基準階:2,700mm 1階:3,000mm |
| OAフロア | 100mm |
| コンセント容量 | 基準階:40VA/㎡ 1階:80VA/㎡ |
| 床荷重 | 500kg/㎡ (一部1,000kg/㎡) |
| 施工年月 | 2002年2月 |
| アクセス | JR「岡山駅」徒歩2分 |
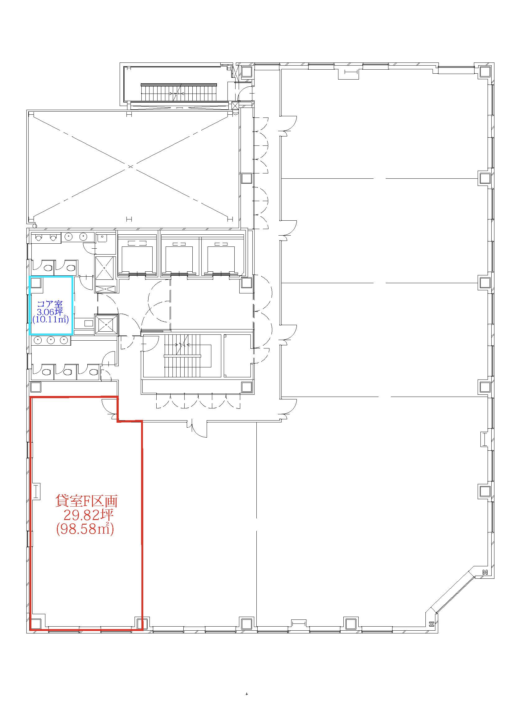
空室情報
| 区画 | 用途 | 面積(坪数) | 賃料・共益費 | 敷金 | 入居可能日 | 平面図 |
|---|---|---|---|---|---|---|
| 8階 | 事務所 | 98.58㎡ (29.82坪) |
応相談・3,500円 | 12ヶ月分 | 2026年1月1日 | 平面図 |
